استكشفوا معرض أعمالنا الذي يضم مشاريع سكنية وتجارية وعالمية وزراعية. يُبرز كل مشروع شغفنا بالبستنة، وخبرتنا التقنية، والتزامنا بالاستدامة.
Explore our curated portfolio featuring residential, commercial, global, and agri-landscape projects. Each project showcases our passion for horticulture, technical expertise, and commitment to sustainability.
Turf Maintenance & Irrigation Revamp – King Abdullah Sports City (KASC) Football Grounds
Completed
Scope of Work:
The Football Turf Maintenance Program ensures FIFA-quality pitches through smart irrigation, soil testing, precision mowing, reseeding, and eco-friendly pest control. High-wear areas are restored with sod and hydroseeding, while drainage and water quality are optimized. Staff receive ongoing training for sustainable care, ensuring year-round performance, aesthetics, and professional field management.
Project Highlights:
Revamped two full-size football pitches and a practice ground to meet international turf standards. Improved water efficiency by 30% with smart irrigation and weather-adaptive scheduling. Achieved year-round turf consistency and zero match cancellations, setting a regional benchmark in sports turf management.


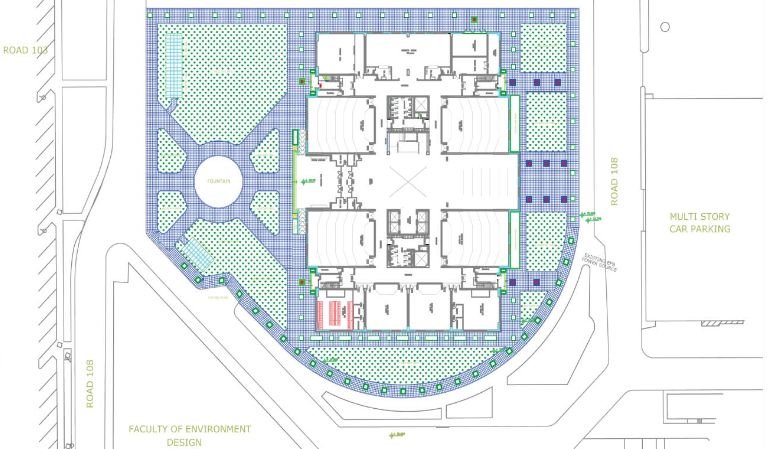
Integrated Building & Landscape Design – Faculty of Environment, Saudi Arabia Completed
Scope of Work:
The architectural scope includes the comprehensive design of academic and administrative blocks, optimizing space, natural light, and sustainable features. Outdoor planning emphasizes green belt integration, interactive courtyards, and efficient circulation for pedestrians and vehicles. Native planting, smart irrigation, and aesthetic hardscape elements enhance environmental harmony and user experience across the campus.
Project Highlights:
Covered a multi-block academic facility with centralized landscape planning.
Delivered a synchronized architecture-landscape interface improving overall campus experience.
Designed for functionality, aesthetic balance, and eco-efficiency in a desert climate.
Incorporated green buffers and seating areas to provide outdoor learning spaces.
Achieved up to 30% energy saving projections through eco-smart orientation and vegetation-based microclimate planning.
Developed and delivered full CAD plans, 3D renders, and technical documentation for implementation.
Campus zones designed with accessibility, safety, and future expansion in mind.
Created a model educational facility design referenced for future ministry projects.


Children Parks
Scope of Work:
This landscape master plan transforms the site into a vibrant, family-friendly space through thoughtful zoning, age-specific play areas, and lush green lawns. It integrates safe pathways, inclusive playground equipment, thematic zones like sensory gardens, and eco-friendly lighting. Complemented by efficient drainage, irrigation, security fencing, and informative signage, the design ensures both safety and enjoyment for all visitors.
Project Highlights:
Park spread across 1.5 acres with diversified natural and interactive zones.
Over 80 species of plants and trees carefully selected for child safety and seasonal vibrancy.
Installed over 30 units of high-grade, certified playground equipment.
Fully compliant with ISO-certified safety standards for play areas.
Custom-designed story-telling zone with landscape-integrated seating for community events.
Zero-hazard pathways with curved edges and anti-slip surface finish.
Use of water-conserving smart irrigation systems to support sustainability.
Night-time visibility enhanced through solar-powered ambient lighting.
Engaged over 200 community members during design feedback and activation phase.
Recognized by housing authority for green space excellence and child development impact.


Misc Projects







Designing & Layout Projects : – Assorted Clients
Scope of Work:
These integrated designs and execution projects encompassed comprehensive planning and implementation across multiple landscape and infrastructure elements. The scope included site layouts development, hardscape detailing with decorative pavements, efficient irrigation system installation, and the strategic plantation of native and ornamental species. Service integration was carefully coordinated to include underground utility corridors, lighting, and drainage systems, all aligned with the site’s functional and aesthetic goals. Each element—from walkways to planting beds—was designed for long-term sustainability, user comfort, and visual harmony, ensuring a cohesive, service-ready environment across residential and commercial zones.
Projects Highlights:
Master planning with movement flow analysis and visual zoning
Decorative interlocking pavements and non-slip natural stone walkways
Fully automated irrigation with moisture sensors and zone-specific control
Installation of native trees, flowering shrubs, and seasonal greenery
Subsurface drainage and water flow management integrated within hardscape
Utility corridors for lighting, electrical, and irrigation lines
Edge restraints and jointing solutions for pavement durability
Street furniture, signage, and planter beds for enhanced user experience







Hardscape and Pavement Projects : – Assorted Clients
Scope of Work:
This portfolio showcases a diverse range of hardscape and pavement projects designed, installed, and maintained for municipal parks, stadium precincts, university campuses, residential neighborhoods, and housing societies. Each project was tailored to its context, focusing on functionality, aesthetics, accessibility, and long-term durability. The scope included master planning, layout development, material selection, sub-base preparation, drainage integration, and installation of high-quality paving solutions. Long-term maintenance services ensured surface integrity, joint stability, and safety compliance through regular inspections, cleaning, and repairs.
Project Highlights:
Site-specific hardscape design with circulation flow and usage analysis
Installation of interlocking pavers, natural stones, tactile tiles, and concrete pavements
ADA-compliant ramps, curb edges, and pathways for inclusive access
Integrated surface drainage solutions, including trench drains and slope grading
Sub-base construction with geotextiles, gravel layering, and compaction
Decorative borders, planters, bollards, and seating areas within paved zones
Long-term pavement upkeep: joint sanding, sealant application, and surface repair
Executed in public spaces, academic institutions, and residential communities






Housing Schemes: – Landscape Design & Execution
Project Highlights:
3D Landscape Visualization to Reality: From concept to construction, executed with 100% accuracy to design.
Spacious Central Lawn: Ideal for community events, children’s play, or relaxation.
Curved Wooden Pathways: Visually striking walkways that guide movement and add elegance.
Gazebo & Sitting Area: Wooden pergola installed with flowering climbers for shade and charm.
Boundary Plantation: Strategic planting of tall trees and shrubs for privacy and windbreak.
Exotic Plant Collection: Inclusion of fan palms, flowering bushes, and sculptural greenery.
Low-Maintenance Layout: Designed with minimal upkeep needs while ensuring long-term vibrancy.
Enhanced Property Appeal: Increased aesthetic and investment value for surrounding homes.






Automatic Irrigation System Projects : – Assorted Clients
Scope of Work:
This collection of automatic irrigation system projects includes end-to-end solutions—from site-specific design and layout planning to professional installation and long-term maintenance. Each system was tailored to meet the unique requirements of residential, commercial, and landscape areas, focusing on water efficiency, plant health, and ease of use. The scope covered hydraulic zoning, smart controller programming, underground pipe and sprinkler placement, and integration with moisture sensors and rain shut-off devices. Regular maintenance programs ensure optimal performance, prevent overwatering, and extend system longevity through seasonal calibration, inspection, and repairs.
Project Highlights:
Custom irrigation layouts designed for varied plant types and soil conditions
Installation of smart controllers, drip lines, and popup sprinklers
Integration of rain sensors, moisture meters, and weather-based automation
Use of top-tier brands like Rain Bird and Hunter for durability
Hydraulic zoning for efficient water distribution and pressure balance
Subsurface pipework with trenching, backfilling, and compacting
Head-to-head sprinkler coverage to eliminate dry spots and runoff
Routine maintenance including flushing, leak repairs, and seasonal tuning






عملاؤنا وشركاؤنا ومشاريعنا
Our Clients, Partners & Projects



Our Clients عملاؤنا


Our Projects مشاريعنا



